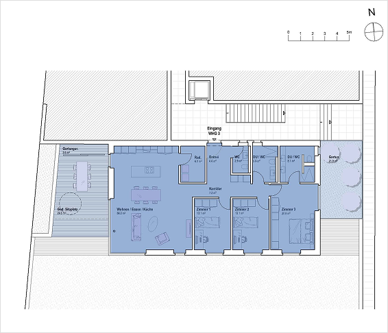
- Ideale Besonnung und kleine private Gartenfläche
- Weitläufiger Grundriss mit Garten & gedecktem Sitzplatz beidseitig
- Offener Wohn-, Ess- und Küchenbereich als Zentrum
- Moderne, geräumige Küche mit viel Stauraum
- Helle Privaträume, eines mit Bad en Suite & Gartenzugang


