Terrassenhaus

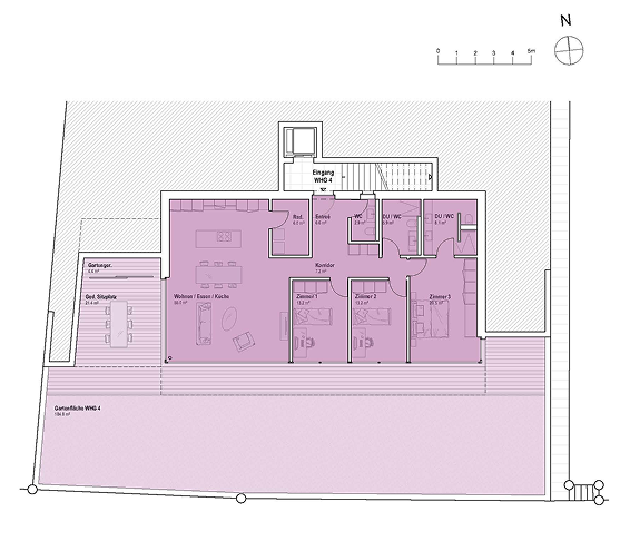
4.0 Gartenwohnung

  • Keller 9.5 m²
  • Total Nettowohnfläche 138.6 m²
  • 4½-Zimmer
  • Gartenfläche 184.8 m²

Für weitere Informationen kontaktieren Sie uns bitte

  • Komplett verglaste Fassaden mit direktem Gartenzugang
  • Offener Wohn-, Ess- und Küchenbereich als Herzstück
  • Moderne Küche mit viel Stauraum + praktisches Reduit
  • Weitläufiger, gedeckter Sitzplatz erweitert den Wohnraum
  • Grosszügige Privaträume, eines mit Bad en Suite
     
Walter Keller
Ihr persönlicher Berater

e-mail

Whatsapp

info@keller-partner.ch

Für weitere Informationen
kontaktieren Sie uns bitte.

Walter Keller
Ihr persönlicher Berater
info@keller-partner.ch