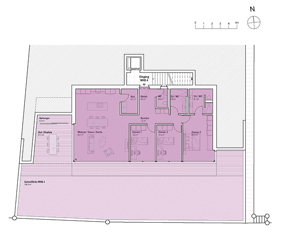
- Komplett verglaste Fassaden mit direktem Gartenzugang
- Offener Wohn-, Ess- und Küchenbereich als Herzstück
- Moderne Küche mit viel Stauraum + praktisches Reduit
- Weitläufiger, gedeckter Sitzplatz erweitert den Wohnraum
- Grosszügige Privaträume, eines mit Bad en Suite


