Weinbergstrasse

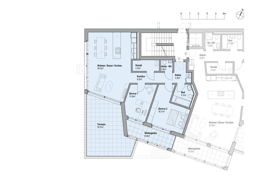
1.2 Wohnung

  • Terrasse 30.1 m²
  • Total Nettowohnfläche 87.9 m²
  • Keller 9.3 m²
  • 3½-Zimmer

Für weitere Informationen kontaktieren Sie uns bitte

  • Sonnige, ruhige Lage mit grosszügiger Südwest-Terrasse
  • Individuell gestaltbarer Grundriss mit Reduit und zwei Bädern
  • Möglichkeit für ein Bad en Suite nach Wunsch
  • Angenehme Raumhöhe von 2.70 m für ein offenes, grosszügiges Wohngefühl
  • Wintergarten mit 9,2 m² – lichtdurchfluteter Zusatzraum mit Blick ins Grüne.
     

 

Walter Keller
Ihr persönlicher Berater

e-mail

Whatsapp

info@keller-partner.ch

Für weitere Informationen
kontaktieren Sie uns bitte.

Walter Keller
Ihr persönlicher Berater
info@keller-partner.ch